560 Lyon St
San Francisco, CA 94117

Scroll to Content

Details

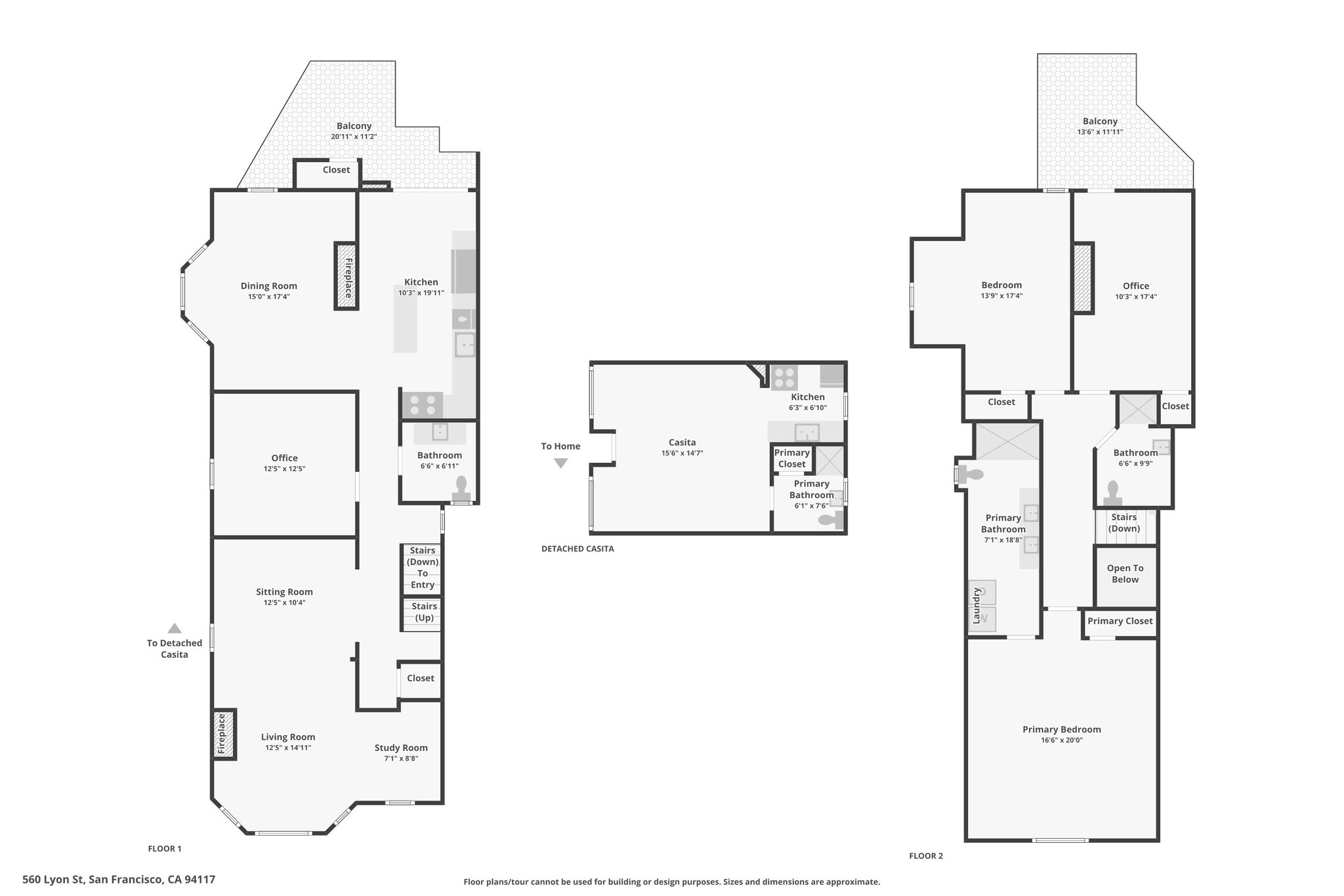
I often say that a Victorian or Edwardian person would feel completely at home and be able to navigate easily in the NOPA, Cole Valley, or the Haight because these areas weren't destroyed during the 1906 earthquake and fire. Huge numbers of refugees left Nob Hill and the old sections of the city for the western addition, where all the houses still stood untouched post-quake. 560 Lyon St was built in the midst of this western expansion, in the height of the Queen Anne stylistic period. Wooden shipbuilding was giving way to iron ships, so the hundreds of carpenters who had been shipbuilders were at a loss until they started decorating San Francisco's Victorians. 560 Lyon and 1575 Fulton look largely as they did in 1894 when they were built. It was common for merchants to have a store on street level and live above in a residential unit. The water records indicate that the original configuration consisted of two stores and two residences. Today, this sale includes a two-story residential unit and an original storefront. The house is large and imposing and is the subject of books, art, and postcards. 560 Lyon has most of its original details: fireplaces, wood floors, beefy wood moldings, tall ceilings, imposing plaster crown moldings, and ceiling medallions. Interior designers own the house, so it is bedecked with lush wallpapers, saturated colors, and bespoke finishes. The kitchen has been designed around the golden triangle for comfort and ease of cooking. Luxury stainless steel appliances, including a wine cooler and pot filler, leathered granite countertops, and a separate eat-in space lead to doors to the decks. Rounding out the first floor (entertaining floor) there is a double parlour living room, a library, a media room or guest room and a half bath. The second floor has a Moroccan-style primary bedroom with views of St. Ignasius, Lone Mountain, USF, UCSF, and Sutro Tower. The turret is also here, and a full bath with a side-by-side laundry. Until recently, 1575 Fulton was an art gallery where an artist sold art from the space and slept in the loft. There are two decks with views of the neighborhood and downtown. They are sheltered from west winds and ocean fog. The parking is diagonal across the street, and an electric charger can be added for a fee. $300 a month for the spot and the seller pays the first year's rent.
Pictures (99)

  • $2,299,000
  • 5 Bedrooms
  • 3 Bathrooms
  • 2,469 Sq/ft
  • Built in 1894
  • MLS: 426093845

Images

Original Unaltered

Digitally Altered

Digitally Altered Watermarked

Offsite

Videos

Floor Plans

3D Tour

Contact

Feel free to contact us for more details!

Bonnie Spindler

Bonnie Spindler

Corcoran Icon Properties

(415) 218-0013

properties@bonniespindler.com